Grundstücksverkauf
und Grundstücksentwicklung
in München

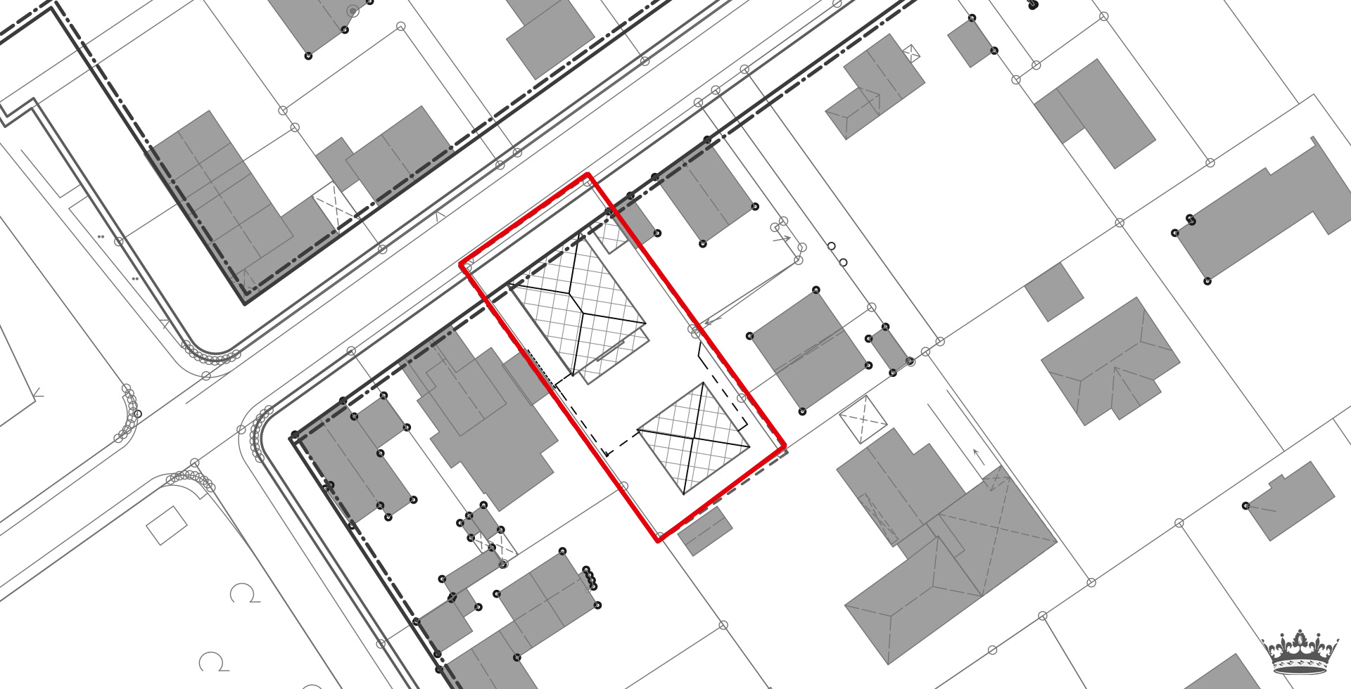
VERKAUFT: Baugrundstück mit Baugenehmigung in Münchener Bestlage
Kategorie | Baugrundstück ohne Altbestand |
Grundstücksfläche | ca. 963 m² |
Verkaufbare Wohnfläche | ca. 803,54 m² |
Projekt | 1xMFH (5 Einheiten) und 1x Doppelhaus mit EG+OG+DG, 7 Tiefgaragenstellplätze, Lift liegt vor |
Baugenehmigung | vorhanden |
Ort | München-Waldtrudering (81827) |
First Class Grundstücksverkauf
reibungsloser Ablauf in München
Ein Grundstücksverkauf in München beginnt zunächst mit der fundierten Wertermittlung. Erst wenn Sie wissen, was Ihr Grund wert ist, können Sie einen realistischen und gleichzeitig rentablen Angebotspreis festsetzen sowie die Vermarktung entsprechend planen. Weder ein zu hoher noch ein zu niedriger Preis ist für Ihren Verkaufserfolg förderlich.
Grundstücksverkauf in München erfolgreich abwickeln:
-
über 20 Jahre Erfahrung und Marktkenntnis
-
Persönliche Beratung durch festen Makler
-
Grundstücksentwicklung zur Wertsteigerung
-
Ausgeklügelter Service für Eigentümer
-
Branchenübergreifendes Netzwerk
-
Kostenfreie Wertermittlung
-
Moderne Vermarktungsstrategien
Bauland ist kostbar. Wenn Sie Ihr Grundstück verkaufen möchten, können Sie mit der First Class Immobilien München GmbH die aktuelle Entwicklung auf dem Grundstücksmarkt für sich nutzen. Wir optimieren für Sie den Erfolg Ihres Grundstücksverkaufs in München.
Jetzt Wertermittlung anfordern!
Bebautes Grundstück
verkaufen in München
Nun könnten Sie denken, dass ein bebautes Grundstück zu verkaufen leicht ist. Schließlich handelt es sich dabei um ein bereits erschlossenes Grundstück. Doch müssen Sie sich die Frage stellen, ob die vorhandene Immobilie Ihren Grundstücksverkauf in München begünstigt oder erschwert? Kann die Immobilie nicht weitergenutzt werden oder ist ein Abriss günstiger als die Sanierung, tun Sie sich und Ihrem potenziellen Käufer einen gefallen, wenn Sie den Abriss bereits erledigen.
Mit uns wird Ihr Grundstücksverkauf ein Erfolg in München:
-
Kostenlose Immobilienbewertung vor Verkaufsstart
-
Aufbereitung von Grundstücken
-
Entwicklung einer cleveren Marketingstrategie
-
Erstellung eines aussagekräftigen Exposés
-
Multimediale Bewerbung des Grundstücks
-
Kommunikation mit Kaufinteressenten
-
Vereinbarung und Durchführung von Besichtigungen
-
Prüfung der Interessenten auf Seriosität und Bonität
-
Führen von Verhandlungen über den Kaufpreis
-
Vorbereitung und Begleitung des Notartermins
Von unserem Vertriebsgeschick lassen wir Sie nicht nur im Fall eines Grundstücksverkaufs in München profitieren. Gerne sorgen wir auch dafür, dass Ihr Hausverkauf oder Wohnungsverkauf in geregelten Bahnen verläuft und beraten Sie hinsichtlich der vielen Besonderheiten, wenn Sie eine geerbte Immobilie verkaufen möchten.
Persönlich beraten lassen!